Un grand volume organique reprend la géométrie orthogonale de la zone d’activités voisine, en s’installant comme un « élément de tête » pour ce nouveau dispositif d’activités. Le découpage du volume est issu de la superposition de plusieurs travées constructives qui sont juxtaposées et coulissent les unes par rapport aux autres, en suivant la logique du programme et de ses surfaces. Les décrochements en « escalier » du volume s’adaptent au profil de la route et aux contours de la parcelle.
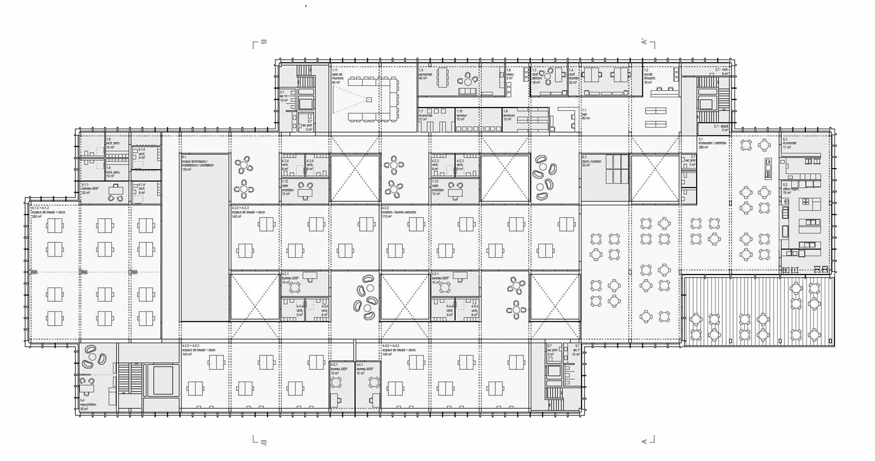
Les travées constructives offrent une grande souplesse d’aménagement et de disposition des éléments du programme. Les accès et les cages d’escalier sont disposés dans les angles du bâtiment, libérant tout le centre dans le but d’offrir une flexibilité maximale pour l’aménagement des différents locaux du programme. La disposition en couches successives coulissant les unes par rapport aux autres favorise la marche en avant du processus productif et un cloisonnement évolutif des différents espaces de travail.
Une grande importance a été donnée à la lumière naturelle, qui inonde généreusement toutes les parties du programme, même celles située au centre, à l’aide de patios ouverts faisant office de puits de lumière qui amènent de l’air et de la lumière naturelle jusque qu’au cœur du bâtiment. Des sheds en toiture complètent cet apport de lumière, tout en servant de support pour la pose de panneaux photovoltaïques orientés au sud. Les patios découpés à l’intérieur du volume de l’étage servent également à mettre en relation visuelle les étages entre eux, favorisant les synergies et les échanges, tout en favorisant l’aération et l’éclairage naturel des différents locaux.






