Ecole Verdeil [br]Payerne

Ecole Verdeil [br]Payerne

Verdeil 02.jpg
externe_def_02.jpeg
externe_def_01.jpeg
externe_def_03.jpeg
externe_def_04.jpeg
VERDEIL PLAN 2 SS.jpg
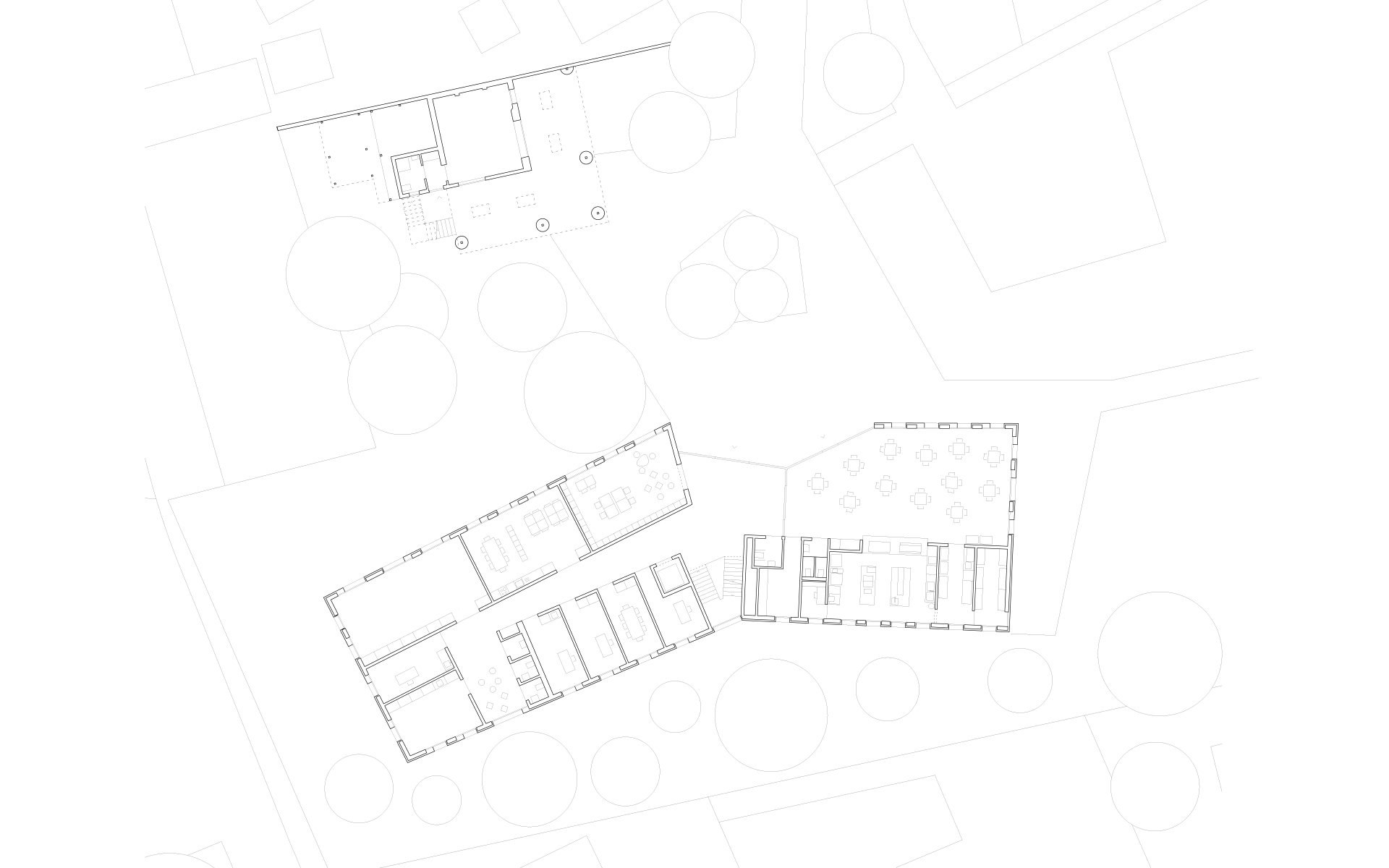
VERDEIL PLAN 3 REZ.jpg
VERDEIL PLAN 4 ETAGE 1.jpg
externe.jpeg
Sortir du plein écranPasser en mode plein écran
previous arrow
next arrow

Ecole Verdeil, Payerne

Concours : 2017
Réalisation : 2019 - 2020

VERDEIL-PLAN-1-SITUATION

Le nouvel édifice en forme d’aile d’oiseau se développe sur deux niveaux. Le rez-de-chaussée accueille les parties communes du programme (réfectoire, bibliothèque, bureaux, salle des maîtres, salle de psychomotricité), qui se répartissent de part et d’autre d’un escalier situé en position centrale. Les salles de classe se trouvent à l’étage et s’égrainent le long d’un parcours en ligne brisée ponctué d’espaces de dégagement ouverts sur le parc environnant. Deux groupes de 3 salles de classe s’organisent autour de ces dégagements qui constituent des prolongements de la salle de classe et permettent de s’isoler avec quelques élèves pour des activités pédagogiques particulières. Le réfectoire et la bibliothèque au rez-de-chaussée sont accessibles tant depuis le hall d’entrée intérieur de l’école que par le couvert extérieur, permettant ainsi leur utilisation en dehors des horaires scolaires. Le réfectoire s’ouvre sur le parc d’un côté et sur une terrasse extérieure de l’autre. La salle des maîtres et les autres bureaux s’articulent autour d’un espace de dégagement qui apporte de la lumière naturelle jusqu’au centre des couloirs. Les salles de classe de l’étage sont largement vitrées pour profiter de la présence du parc requalifié. La construction est réalisée en éléments bois préfabriqués en atelier et montés sur le chantier en quelques jours. Cette manière de faire permet de garder en activité les bâtiments existants en réduisant les nuisances et les temps de montage sur le chantier pendant les travaux. Dans la dernière étape de travaux, le parc est réhabilité entièrement.

 
 
Concours: 2017
Construction: 2019-2020
Maître de l‘Ouvrage: Fondation de Verdeil 
Ingénieur civil: AB Ingénieurs SA (Amsler Bombeli), Lausanne
Physique du bâtiment: Sorane SA, Le Mont sur Lausanne
Ingénieur CV: BESM SA bureau d'études , Granges-près-Marnand
Eclairagiste: Aebischer & Bovigny, Lausanne
Paysagiste: Bonnemaison, Lausanne
Photographie: Matthieu Gafsou

esposito & javet architectes
Rue des Terreaux 10
1003 Lausanne
Google Map

t +41 21 661 27 05
info@esposito-javet.ch