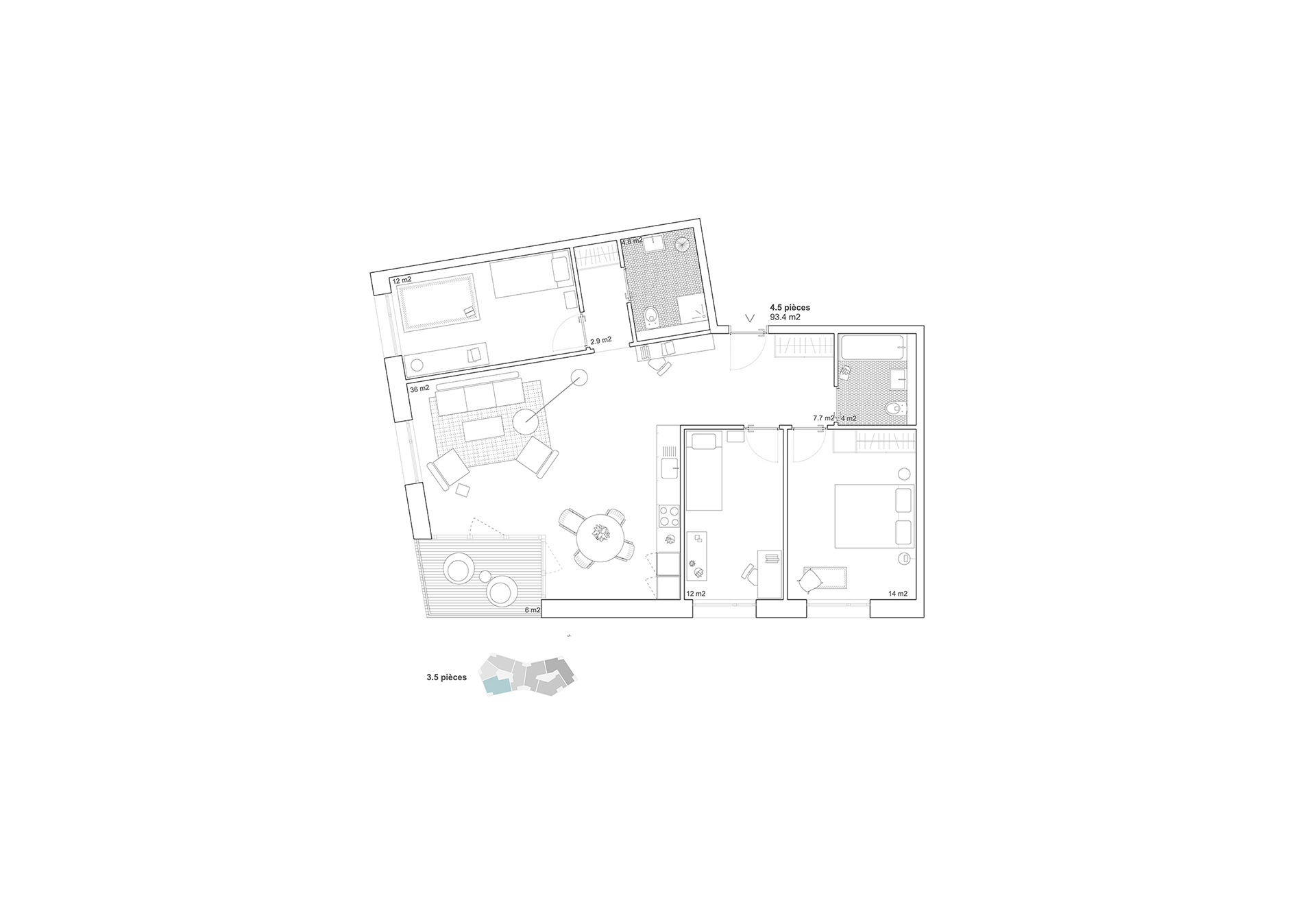
Le concept d’implantation des volumes bâtis des différentes coopératives découle du cahier des principes d’aménagement urbanistique et paysager établi pour l’ensemble du site et plus particulièrement pour la pièce urbaine C. La forme urbaine de cette pièce longue et étroite s’apparente à une barre et non pas à un ilôt, comme c’est le cas pour d’autres pièces urbaines sur le site. En partant de cette forme linéaire initiale, sans redent ni décalage, et en la rendant plus perméable par la multiplication des passages traversant le site, la continuité de la figure s’enrichit de séquences et de déformations qui font la part belle aux aménagements extérieurs et aux plantations, malgré la densité importante du programme de logements demandé. L’organisation des appartements se veut simple et rationnelle. Les angles des différents bâtiments accueillent les pièces de jour, les façades linéaires les chambres qui sont de forme rectangulaire. L’organisation des appartements se veut simple et rationnelle. Les angles des différents bâtiments accueillent les pièces de jour, les façades linéaires les chambres qui sont de forme rectangulaire. Depuis l’entrée du logement, un hall doté d’une armoire/vestiaire distribue les chambres et les locaux sanitaires. Dans son prolongement, les pièces de jour de l’appartement se dévoilent dans toute leur profondeur et leur spatialité. Cette séquence se termine par le balcon/loggia qui organise et différencie le séjour du coin cuisine/salle à manger. L’absence de couloirs au profit de surfaces de dégagement plus généreuses restitue plus de surface utile pour le logement, appropriable pour des usages variés (coins bureau, surface de jeu, rangements/bibliothèque).












