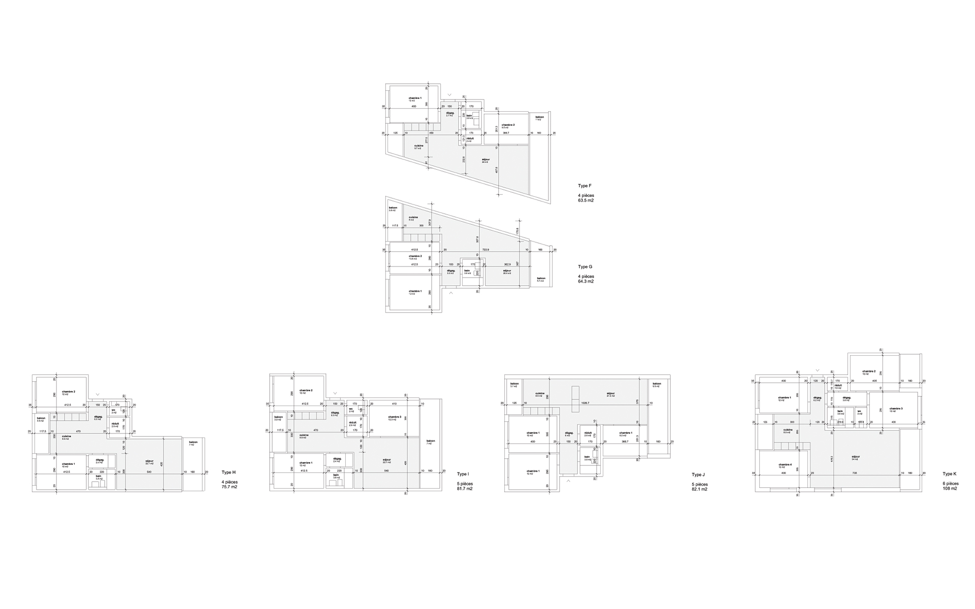
Le site des Fontenettes est à la fois urbain et très verdoyant. L'aspect végétal est omniprésent sur cette rive de l'Arve dédiée aux loisirs et au sport, entre les deux éléments topographiques dominants, le plateau de Champel et la colline de Pinchat. Le quartier existant est « ouvert », traversé par la végétation et offrant des percées visuelles sur le paysage alentour. L’implantation proposée veut valoriser ces deux aspects, l’urbain et le végétal. Quatre grands bâtiments « urbains » s'implantent dans un grand parc valorisant au maximum les arbres majeurs existants. De grandes coulées végétalisées s’ouvrent sur le quartier environnant et sur les deux collines boisées au nord et au sud. Les cassures des volumes reprennent les géométries présentes sur le site, tout en créant des espaces extérieurs de taille et d'atmosphère différentes. Ces plis diminuent l'impact volumétrique des bâtiments en permettant une meilleure intégration au contexte environnant. La structure et la typologie choisie avec une cage d'escalier distribuant trois logements permettent plusieurs combinaisons de types d’appartements, la plupart traversants.









